[連載]酒のツマミになる間取り-団地のリノベ・大募集! 団地リノベ・応募作品-01「酒のツマミになる間取り」
- お役立ち
リノベーションの要件
- 夫婦と小学2年生(女)
- 勉強はリビングでさせたい
- 夫は週1テレワークの日がある
- アウトドア好き
- ベランダ菜園したい/家具少なめ希望
- 友人とのホームパーティが好き
- 夫婦でお酒を飲む時間も大事
応募作品紹介:酒のツマミになる間取り(橋本琢也様)
プロフィール
| プランタイトル | 酒のツマミになる間取り |
|---|---|
| プランについて一言 | アウトドア好きの方に是非参考にして頂きたいと思っています。音楽と映像も一緒に楽しんで下さい。 |
| プランの解説文 | アウトドアのイメージを追いかけましたが、なかなかでした、外と中を自由に行き来できればもっとよかったです。 |
プレゼンボード
▼クリック or タップすると拡大表示できます。
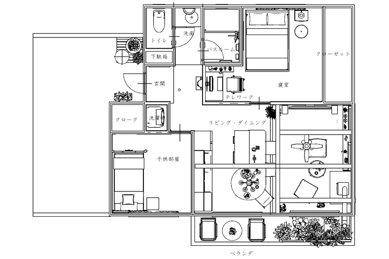
間取図
▼スライダーで Before(青) とAfterを見比べられます。


パース
音楽と映像を楽しみながらホームパーティーをイメージしました。
鳥瞰パースです。寝室を独立させその中にテレワークスペースを設けました。
編集部メンバーのコメント
団地とは思えないほどのおしゃれさと機能面を合わせもつプランだなと感じました。
リビングのしっかりめの梁がかっこいいよね。
団地なので梁は構造的には要らないけどデザインとして付け足すって、素人には思いつかない…
それもあってか、全体的にシックなインテリアがいいなと思いました。
室内にいながら、ログハウスのような暖炉や木の雰囲気が味わえて、夜や冬の家が一層楽しくなりそう。
私はリビングダイニングがとても素敵な空間になっていて感動しました。
キッチンカウンターでお酒を楽しみながら、夫婦だけの特別な時間を過ごすのも良し、
薪ストーブの前で音楽を聴きつつ、ベランダ菜園を眺めながら“チルなおうちキャンプ気分”を味わうのも良し、ですね。
“チルなおうちキャンプ気分”いいですよね。
玄関先やリビングにも観葉植物や小さな植木鉢が置かれているのも、ご夫婦の好みを取り入れてくださっていてステキです。
私は寝室もステキだなと思っていて。
テレワーク場所や大きなクローゼットも確保されて、とても暮らしやすそうです。
そうそう!テレワークのところの青い壁紙も、適度に籠れる感じも、集中出来そうでいいよね。
あと、細かいけど、洗濯機の居場所を作ってくれていてうれしかったです。
わかります!洗濯機を隠せるスペースができているのは、生活感が剥き出しにならない工夫がされていて私も嬉しかったです!
お子様は小学4年生。子供部屋もしっかり広さを確保されているので、お友達を呼びやすいですね。こんなにお洒落なお家自慢したくなっちゃいますね。
ご応募ありがとうございました!







