第一章【平面図・配置図】一級建築士から学ぶ現場に伝わる図面をはやく描くコツ
- お役立ち
目次
平面図・配置図は、建築現場において最も基本となる図面のひとつです。
しかし、「何をどこまで描いたらよいのか分からない」「図面の微調整に時間がかかる」「図面に描いたのに現場から問い合わせがある」と悩む方も多いのではないでしょうか。
本記事では、一級建築士の視点から、現場に伝わる図面をはやく描くための基本的な考え方と書き方のコツを解説します。
平面図・配置図とは?
平面図とは、各階の床面から約1.0〜1.5m程度の高さで建物を水平に輪切りにし、上から見た図面のことをいいます。それに対し、配置図とは、敷地に対する建物の位置、道路や隣地などの情報、敷地の高低差、外構などを示す図面をいいます。
平面図は、住宅であれば100分の1の縮尺で描くことが多く、間取りを始め、建具や設備など基本的な情報を一目で確認できるため、現場では他の図面を読み解くためのインデックスとしての役割も兼ねています。平面詳細図に描くような詳細を表現するというよりは、全体を見通すために必要な情報を集約した図面と考えるとよいでしょう。
配置図は、建物の位置を決定するための情報を伝える大事な役割があります。敷地境界の基準点からの離隔距離を明確に示し、建物の位置を正確に伝えましょう。電気や上水・下水の引き込み位置の確認や、駐車場や塀などの外構工事についての基本的な情報の把握にも使います。
平面図・配置図の書き方
①作図の前に、まずは情報を整理する
平面図・配置図を描く前に、まずは必要な情報を収集し、表や手書きのスケッチでまとめます。敷地の形や測量図、近隣情報など、施主が持っている資料や役所で収集できる情報を集め、足りない情報や曖昧な情報がないかチェックします。そして、その敷地に建てることが可能な建物のサイズや用途、高さなどを把握しましょう。敷地情報の整合性は、境界線をCADで描きながら確認するのもおすすめです。
②手書きスケッチで基本プランを作成
続いて、収集した情報をもとに、基本プランを作成していきます。
いきなりCADを使ってプランを作成するのではなく、手書きスケッチで計画を立てることをおすすめします。というのも初めの段階からCADで作成すると、全体を考える必要があるにも関わらず、細かなところが気になり始め、かえって時間がかかってしまうことがあるからです。
平面図や配置図の場合、CADによる作図は、決定した内容をトレースし整合性を確認するくらいのつもりでいると、スムーズに進めることができます。そして、採光計画・換気計画・構造計画にも配慮しながら、窓や設備、躯体の配置を決めていきましょう。
平面図は、工務店が見積もり作成時や材料の拾い出しに使用するのはもちろん、現場進行時には現場監督、大工、建具や電気、設備など、施工に関わるすべての職人が必ず見る、基本図面です。そのことを意識して、誰が見ても情報が的確に伝わるように、分かりやすく、見やすい図面を作成することが大切です。
平面図・配置図の修正を減らす書き方のコツ
図面を手早く描くためには、作図テクニックの向上やショートカットの活用も有効ですが、それ以上にいかに作成途中の修正を減らすことができるかが重要なポイントとなります。
基準点の位置がずれていた、境界線からの離隔すべき距離を確保できなかったなどの理由で修正していると、時には修正する必要のない線も一緒に移動してしまう、誤って消してしまうなどといったミスが発生するからです。何度も修正を繰り返していては、時間も労力もかかってしまいます。さらには、施工時になって、現場と図面が一致しないといったトラブルも発生しかねません。
そのような問題を減らすために、まずは描き始めのポイントや通り芯など、基準となるものを丁寧に決定しましょう。一度位置を決定したら、重要なポイントはグループ化するなどして、作業中の操作で動かしてしまわないように固定するのがおすすめです。
現場で伝わる平面図・配置図にするための表現ルール
①白黒印刷でも見やすい表記を意識する
次に、図面の表現方法について考えてみます。
図面を分かりやすく表現するために、色を使い分けて作図する場合もあるかもしれません。施主向けの図面の場合は、色つきであると分かりやすく、プレゼン資料としても好まれる傾向があります。
しかし、現場の職人が図面を見る場合、色分けで作成した図面も白黒で印刷して使用することが少なくありません。白黒印刷で意図を読み取れない図面は、残念ながら現場では通用しないと思った方がよいでしょう。代わりに、太さや点線・破線を使い分けて見やすく表現する必要があります。
②文字サイズ・記号・凡例を統一する
室名、建具、床高など同じ情報ごとにルールを決めておくことも大切です。例えば、同じ情報ごとに文字サイズや記号を統一し、記号は図面の凡例に貼り付けてまとめます。煩雑になりがちな情報には囲みをつけるなども効果的です。
③情報はまとめて入力し、書き漏れを防ぐ
建具、設備、躯体など情報ごとになるべく一気に書き上げることは、書き漏れ防止に繋がります。また、項目ごとに入力していくことで、それぞれの職人さんと同じ視点に立ちやすく、見やすい図面になります。
平面図・配置図を描き終わったらチェックしよう
平面図、配置図に必要な情報を一通り入力したら、描き漏れや重複、入力ミスがないか確認しましょう。矢印や引き出し線が交差するなどして見にくいところはないかもチェックします。
寸法は、現場でいちいち計算したり、考え込まなければ分からないような表記の仕方になっていないか見直しましょう。特に部屋ごとのサイズが一目で分かるようになっているかも確認するとよいでしょう。
PC画面上で確認が終わったら、指定のサイズに印刷してチェックすることも重要です。文字が重なっていたり、潰れたりして読めないものはないか、印刷すると薄くて見えないものはないかなども確認しましょう。図面の読み手が年齢層も若い層からベテランの方まで幅広いため、自分が読めるから大丈夫とは考えず、文字の大きさには十分配慮しましょう。
最後に、現場監督や職人の立場になって、施工時に必要となる基本的な情報が明記されているかも確認していきます。曖昧な表現になっていたり、情報が多すぎて施工に迷うようなものがあれば、必要な情報に絞り、明確な表現にすることも大切です。平面図はインデックスとして必要な情報が揃っていることが重要。詳細は別の図面で表現すればよいものが多く、重複して説明するのであれば、見やすいようにカットすることも検討しましょう。
【実践】実際に伝わる平面図を描いてみよう
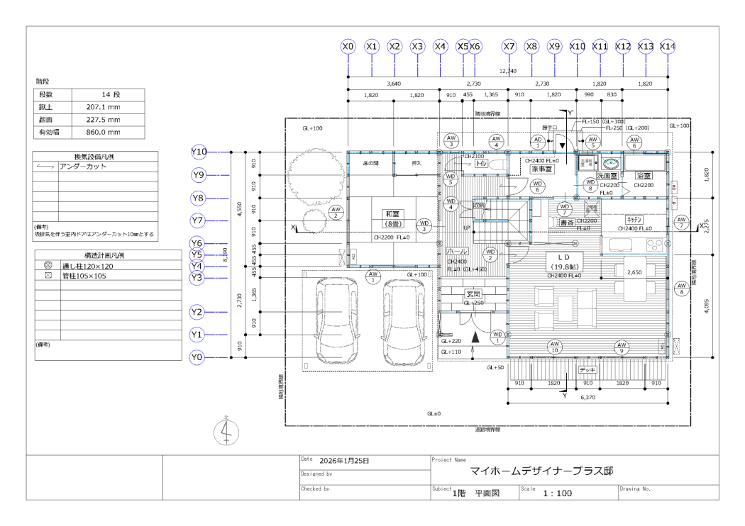
実際に3Dアーキデザイナーを使用して、平面図を作成しました!
今回は、この基本図面をもとに、一級建築士のAさんに「伝わる図面」になるためのフィードバックをお願いしたいと思います。
よろしくお願いします。では、図面を見ていきましょう。
基本図面をチェック
それでは、ここからフィードバックをお願いします!
まずは、伝えたい情報は何かを意識して、全体のフォントサイズを確認していきましょう。
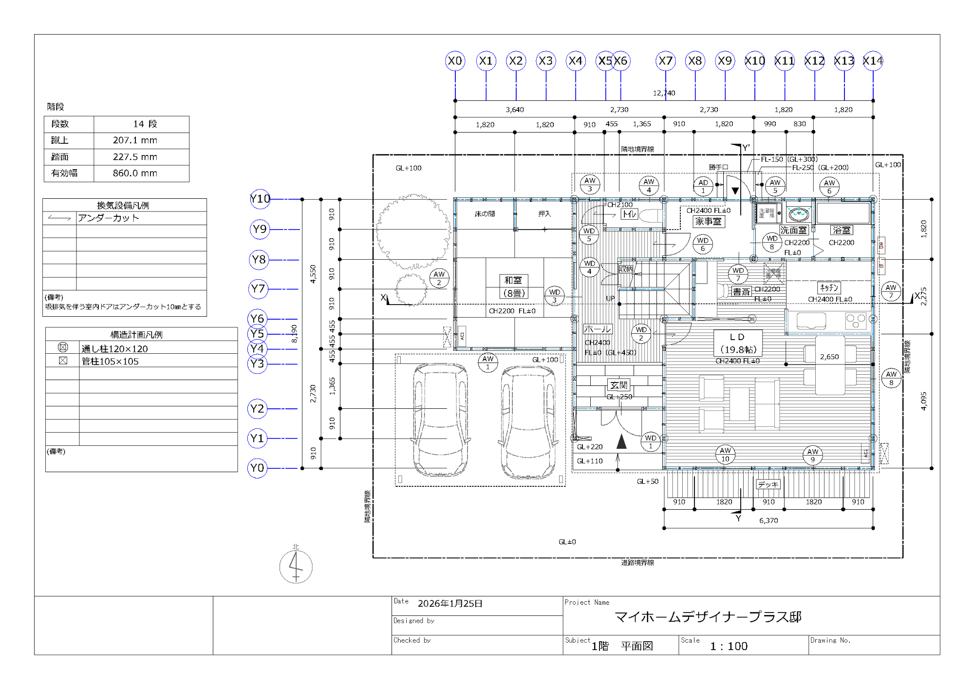
例えば、隣地境界線・道路境界線のフォントサイズは、室名より小さくするとよいですね。室名は他のフォントより少し大きくし、四角で囲むと見やすくなります。LDや和室などの居室には、何帖の広さなのかを書き、材料の拾い出しもしやすく親切な図面になります。同様に、FL、GL、CHも記入しておくとよいですよ。
施主へのプレゼンとは違う見方が必要なのですね。
そうですね。同じように、柱についても見てみましょう。
管柱と通し柱では長さも費用も異なりますから、行き違いのないように明記することが大切です。フローリングの張る方向や畳の敷き方も正しく描きましょう。施工時にも重要となりますので、職人たちに迷いが生じないように図面で示しましょう。
見積もりの時や現場で、素早く対応していただくためにも大切な要素ですね。
その通りです。それでは寸法も見やすくなっていますか?
正確であることはもちろんですが、いちいち計算しなくても一目で必要な情報が拾えるように、整えておくと親切な図面になりますよね。
細かな寸法があれば、困ることがないのではと思っていましたが、確かに一手間かけさせてしまいますね。
続いて、キッチン横のデスクスペースを見てみましょう。
ここはキッチンと一体のスペースのようで、ちょっと違いますよね。
仕上げなども異なるのではないでしょうか。
施工時や見積もり時には、現場監督や職人同士で電話でのやり取りも多く発生します。
連絡しやすいように、名前をつけておくとよいですね。
通り芯があれば分かると思っていましたが、電話では図面を見ながらとは限らないですしね。
そうですね。違う現場で仕事中の場合もありますから、できる限り行き違いがないように工夫してみましょう。TVや造り付け家具、置き家具についても、見積もり前に施主とサイズや位置を決定し、図面に記載しておきます。大工工事での下地取り付けや電気工事の配線にも影響しますので、正確な見積もり提示に役立ちます。
フィードバックをもとに整えた図面がこちら!
今回のポイントは、「情報を足す」ことよりも、どの情報を一番伝えたいかを整理することですね。
たしかに、修正後の図面は、
「どこを見ればいいか」がすぐ分かるようになりました!
このように、少し視点を変えて見直すだけでも、平面図の伝わりやすさは大きく変わります。
最後に、図面を仕上げる際に必ず行いたいチェックポイントを確認しておきましょう。
伝わる図面チェックリスト
- 見ただけで情報を拾える図面になっているか
- 情報過多になっていないか。見にくければ、別に詳細図面をつけることを検討する
- 施工に関わるすべての職人が見るものとして、基本的な情報が整理され、インデックスとしての役割が果たせているか
- 情報ごとに文字のサイズ、フォント、記号など表現が統一されているか
- 引き出し線は交差しすぎていないか
- 白黒で印刷しても読み取れる表現となっているか
- 年齢を問わず読みやすい文字サイズになっているか
執筆者
一級建築士・住宅収納スペシャリスト
意匠設計事務所で、新築からリノベーションまで住宅を主軸として、図面作成から施主や現場での打ち合わせ、現場監理まで携わる。
10年以上の実務経験をもとに、現場で役立つ設計・図面作成の考え方を監修。
本連載では、図面を効率よく、正確に描くための基本的な視点を整理している。







